



























Sited in a raw and empty warehouse in the West Loop of Chicago, the design challenge was to turn it into a multipurpose activation space, celebrating the intersection of creativity and basketball during the NBA All-Star weekend.
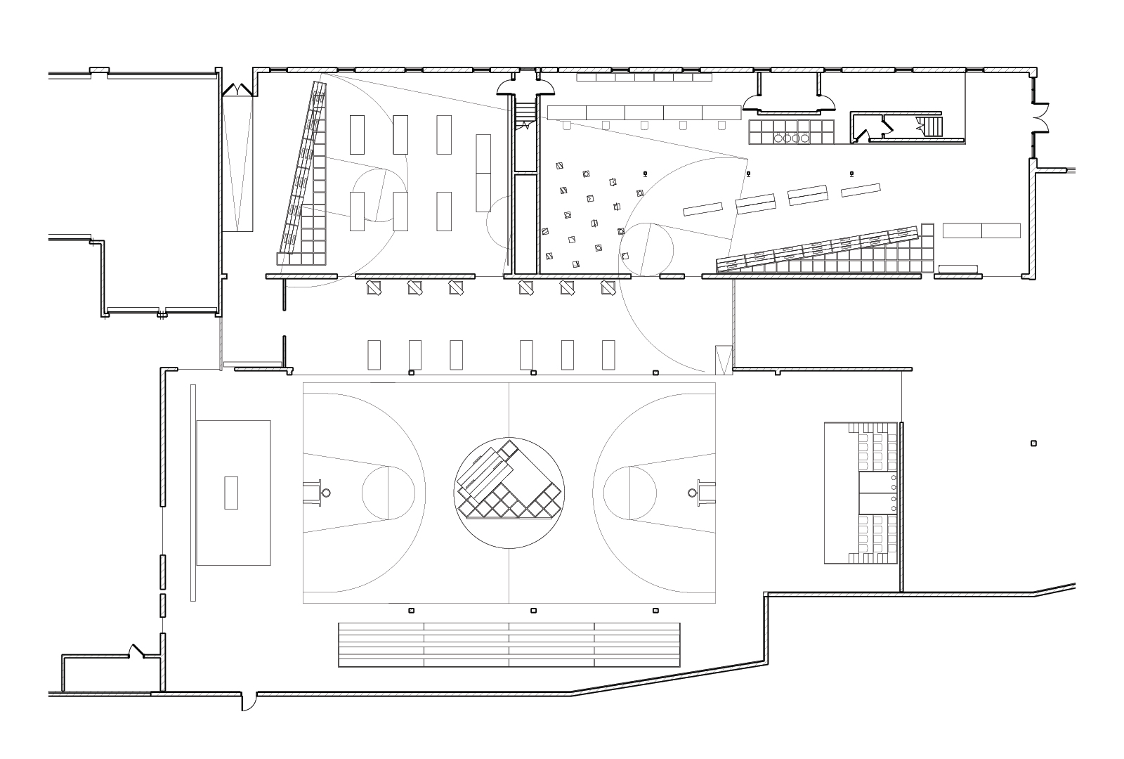
The sequence and adjacency of spaces had to be considerate of storytelling as well as private vs public programs. The primary circulation intends to first build excitement through a wedge-shaped tunnel; then validate Converse's basketball DNA through heritage; next, inspire the participants to create with footwear showcase and open conversation series; and finally, enable creativity through customization in the pop-up shop. Through the modification and selection of rooms, the build-up to the center court was not only expressed through contents but also spatial compression and release. Formalistally, three large buildouts anchored the entry, the center stage, and the retail spaces. Inspired by scaffolding, surfaces and shapes were carved into 3-dimensional grids, establish a dichotomy between planes and wireframes, aberrations, and systems. These shapes referenced the geometries of the basketball game (bleachers, backboards, and court lines), abstracting the sport through a creative lens. The Pro Leather totems were also inspired by details in the footwear design. Mixing with symbols of the game (basketballs and rims), the blocks stacked together in a rotated grid, creating a surreal environment for picture taking and discovery.
Project: Creative All Star Series
Location: Chicago
Date: February 2020
Experience Design Lead: Justin Jiang
Design Partner: Industry
Production: OBE
Fabrication: Axiom Custom, The Lab
The sequence and adjacency of spaces had to be considerate of storytelling as well as private vs public programs. The primary circulation intends to first build excitement through a wedge-shaped tunnel; then validate Converse's basketball DNA through heritage; next, inspire the participants to create with footwear showcase and open conversation series; and finally, enable creativity through customization in the pop-up shop. Through the modification and selection of rooms, the build-up to the center court was not only expressed through contents but also spatial compression and release. Formalistally, three large buildouts anchored the entry, the center stage, and the retail spaces. Inspired by scaffolding, surfaces and shapes were carved into 3-dimensional grids, establish a dichotomy between planes and wireframes, aberrations, and systems. These shapes referenced the geometries of the basketball game (bleachers, backboards, and court lines), abstracting the sport through a creative lens. The Pro Leather totems were also inspired by details in the footwear design. Mixing with symbols of the game (basketballs and rims), the blocks stacked together in a rotated grid, creating a surreal environment for picture taking and discovery.
Project: Creative All Star Series
Location: Chicago
Date: February 2020
Experience Design Lead: Justin Jiang
Design Partner: Industry
Production: OBE
Fabrication: Axiom Custom, The Lab